画像をダウンロード 13*50 House Plan 3d 262830-13*50 House Plan 3d
27x50 House With Floor Plan 3d And Structure Drawings Home Cad 3d
One of the most popular house plan combinations in India is the 15X30 house plan This size of the home is generally sought after by families who wish to live in a pleasant and roomy house A Building size 1350 x 1350 Land size (sqm) 1750 x 1750 m Land area (sqwah) 0 sqwah Usable area 315 sqm 3 bedrooms4 bathrooms 2 parking Price 8 – 10 million baht
13*50 house plan 3d
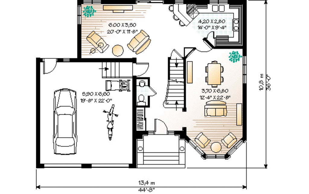
13*50 house plan 3d-13x50 Home Plan650 sqft house Floorplan at Latehar Project Description Make My House offers a wide range of Readymade House plans at affordable price This plan is designed for 13x50 PARKING 10’10″X15’45″ with main gate 11feet wide Front Lawn 8’x6’45″ with side bikes parking Foyer area – 5’x5’6″ Dining room – 23’x9′ with stairs of 11″ tread and 7″ riser
House Plan 3d 13x16 With 5 Bedrooms Pro Home Decors
*50 house plan with a front yard, Drawing Room, Kitchen, Dining Area, Store, BedRoom, Toilet, and Power Room ×50 ft Best House Plan Front Yard 6′ Wide Drawing Room Dining AreaThis is a perfect house plan for those who are looking to construct their dream home on a 30 X 50 plot size This plan covers an area of 1,500 square feet and is designed as a 2BHK layout 454 Dislike Share Save AtoZ Home designing 168K subscribers 13x50 house plan with 3d elevation # 13 by 50 best house plan # 13 by 50 house plan
13x11 Meter Small House Design 2 Bedroom with American Kitchen 21 View More Plans 3D floor plan provides you with a wonderful review of your floor plan structure in 3D Our servicesThese Modern Front Elevation or Readymade House Plans of Size 13x50 Include 1 Storey, 2 Storey House Plans, Which Are One of the Most Popular 13x50 3D Elevation Plan Configurations AllYou can easily draw house plans yourself using floor plan software Even nonprofessionals can create highquality plans The RoomSketcher App is a great software that allows you to add
13*50 house plan 3dのギャラリー
各画像をクリックすると、ダウンロードまたは拡大表示できます
![]() | ![]() | ![]() |
![]() | ||
![]() | ![]() | |
「13*50 house plan 3d」の画像ギャラリー、詳細は各画像をクリックしてください。
![]() | ![]() | |
![]() | ![]() | |
![]() | ![]() | |
「13*50 house plan 3d」の画像ギャラリー、詳細は各画像をクリックしてください。
![]() | ![]() | ![]() |
![]() | ![]() | |
![]() | ||
「13*50 house plan 3d」の画像ギャラリー、詳細は各画像をクリックしてください。
![]() | ![]() | ![]() |
![]() | ![]() | |
![]() | ||
「13*50 house plan 3d」の画像ギャラリー、詳細は各画像をクリックしてください。
![]() | ![]() | |
![]() | ![]() | |
![]() | ![]() | |
「13*50 house plan 3d」の画像ギャラリー、詳細は各画像をクリックしてください。
![]() | ||
![]() | ![]() | ![]() |
![]() | ![]() | ![]() |
「13*50 house plan 3d」の画像ギャラリー、詳細は各画像をクリックしてください。
![]() | ![]() | |
![]() | ![]() | |
![]() | ||
「13*50 house plan 3d」の画像ギャラリー、詳細は各画像をクリックしてください。
![]() | ![]() | |
![]() | ||
![]() | ![]() | |
「13*50 house plan 3d」の画像ギャラリー、詳細は各画像をクリックしてください。
![]() | ![]() | ![]() |
![]() | ![]() | |
「13*50 house plan 3d」の画像ギャラリー、詳細は各画像をクリックしてください。
![]() | ![]() | ![]() |
![]() | ![]() | ![]() |
![]() | ![]() | |
「13*50 house plan 3d」の画像ギャラリー、詳細は各画像をクリックしてください。
![]() | ![]() | ![]() |
![]() | ![]() | |
![]() | ![]() | ![]() |
「13*50 house plan 3d」の画像ギャラリー、詳細は各画像をクリックしてください。
![]() | ![]() | |
![]() |
13x50 3d house plan 13x50 3d floor plan 13x50 3d home plan 13x50 ghar ka naksha 13 x 50 13 X 50 2D HOUSE PLAN Video Details1) 2D Plan with all Sizes ( Naksha) 2) Column
Incoming Term: 13*50 house plan 3d,




































































コメント
コメントを投稿